Dorf 43, Koblach
Das Gebäude ist nach Südwesten ausgerichtet, die Wohneinheiten sind auf drei Geschosse verteilt.
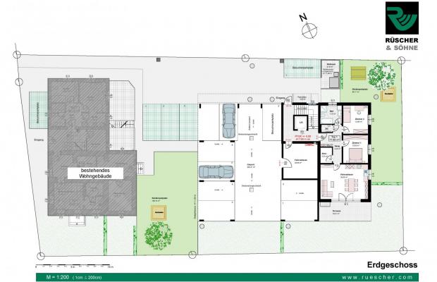
Im Erdgeschoss wird eine 3-Zimmer-Wohnungen mit überdachter Terrasse errichtet. Im 1. Obergeschoss wird eine 2-Zimmer-Wohnung, eine 3-Zimmer-Wohnung und ein 4-Zimmer-Wohnungen mit großzügigen, überdachten Balkonen errichtet. Im Dachgeschoss entstehen zwei 3-Zimmer-Wohnung mit sehr großer und teils überdachter Terrasse.
Alle Wohnungspläne sind sehr großzügig, modern und familienfreundlich. Innerhalb der Wohnungseinheiten können die Pläne unter Berücksichtigung der Statik und der Leitungsführung teils noch nach Ihren Wünschen verändert werden. Wir freuen uns auf Ihre Ideen. Separates WC und Abstellraum in den großen Wohnungen sind bei uns Standard, alle Schlafzimmer sind über den Flur erreichbar.
Der Zugang zu den Wohnungen erfolgt über ein geschlossenes Treppenhaus. Alle Wohnungen, Kellerräume und Allgemeinflächen sind mit Lift erreichbar. Bei allen Wohnungen ist der rollstuhlgerechte Ausbau möglich.
Nicht auf den ersten Blick zu sehen, und doch allgegenwärtig sind Standards wie Solarenergie, Geschlossenes Treppenhaus, Hochwertige Fenster, Baubetreuung ohne Umwege von der Vertragsunterzeichnung bis zur Übergabe.
Kleine Handwerksbetriebe mit Erfahrung aus der Umgebung - die Wertschöpfung bleibt im Ländle - ergänzen unsere Arbeit.
Ihre Wohnung soll individuell und für Sie, eine ganz besondere Wohnung werden, dafür möchten wir ab Kauf bis zum Einzug sorgen.
Aktuelles
Kontakt
Rüscher u. Söhne Bau GmbH & Co KGEgetenweg 46
6800 Feldkirch
Tel: +43 (0) 55 22 736 17-0
Fax: +43 (0) 55 22 736 17-9
E-Mail: bau@ruescher.com






